Les Produits
-
Outillage couvreur
-
Outillage d'atelier
-
Equipement d'atelier
-
Aménagement d'atelier
-
Manutention levage
-
Equipement de protection individuelle
-
Hygiène sécurité
-
Électroportatif
-
Consommable maintenance
-
Collage fixation
-
Electricité
-
Quincaillerie serrurerie
- Garniture de porte
- Butoir
- Garniture de fenêtre et baie coulissante
- Serrure à larder 1 point
- Serrure à larder multipoints
- Serrure pour profil étroit 1 point
- Serrure pour profil étroit multipoints
- Serrure de miroiterie
- Cylindre standard
- Cylindre de sûreté
- Cylindre de haute sûreté
- Coffre en applique 1 point
- Coffre en applique multipoints
- Verrou de sûreté
- Crémone de pompier
- Fermeture antipanique
- Ferme-porte
- Contrôle d'accès
- Cadenas
- Antivol
- Consignation
- Batteuse
- Armoire à clés
- Coffre-fort
- Boîte aux lettres
- Motorisation de portail
- Serrure de grille et de portail
- Verrou de portillon - portail
- Ferrure pour coulissant au sol - autoportant
- Guide & butée portail
- Motorisation de porte de garage
- Ferrure de porte de garage
- Guide et butée de porte de garage
- Motorisation de volet
- Ferrure de volet
- Penture
- Gond
- Paumelle
- Agencement
- Quincaillerie d'ameublement
-
Accès en hauteur
-
Equipement de chantier
-
Outillage du bâtiment
-
Aménagement urbain espaces verts
Contact
FONDEUR PARIS
67-69 Rue Oberkampf
75011 Paris
Tèl. : 01 47 00 42 12
Fax : 01 43 38 17 74
fondeur-sa@orange.fr
Horaires d'ouverture :
- Du lundi au jeudi
7h30 - 17h
- Le vendredi fermeture 16h
Pour plus d'informations: nous contacter par email
Catalogues interactifs
- Accueil>
- Quincaillerie serrurerie>
- Ferme-porte>
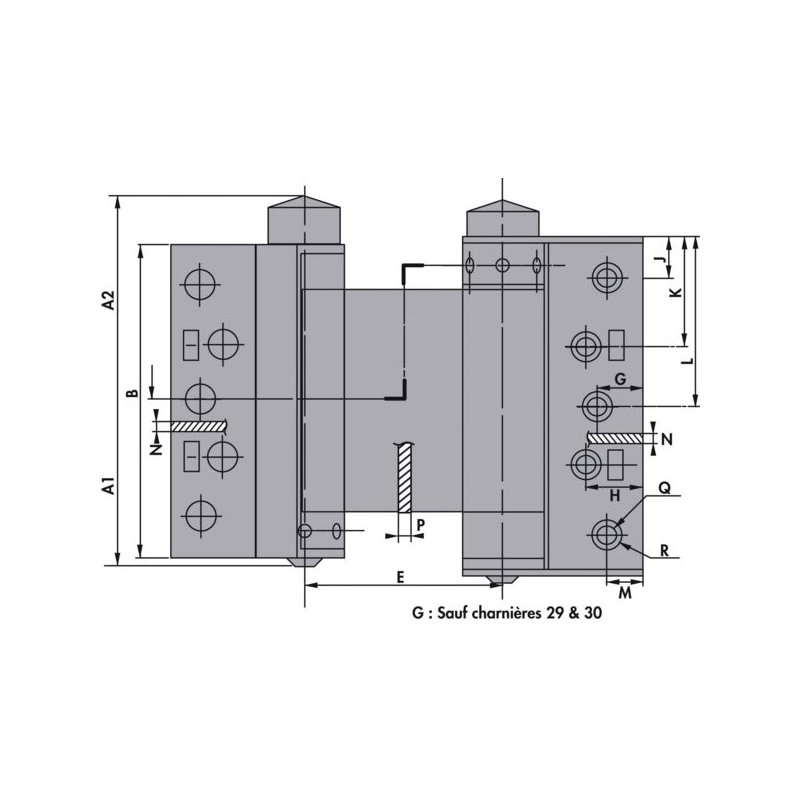
- Charnière double action Liobex
Charnière double action Liobex
Modèle compact en acier. Volets emboutis, ressorts à double sens de bobinage. Finition : argent Conditionnement : boite
Nom : Essentiel Industrie 2023
Page : 733
Code catalogue : 50308
| Réf. | Caractéristiques | Prix |
|---|---|---|
| 50308-39 | Poids maxi. porte(s) : 45 kgHaut. lame(s) : 175 mmép. porte(s) : 33 à 50 mmLivré : x 2 | 106,95 € HT 128,34 € TTC |
| 50308-42 | Poids maxi. porte(s) : 55 kgHaut. lame(s) : 200 mmép. porte(s) : 35 à 55 mmLivré : x 2 | 142,10 € HT 170,52 € TTC |